
GreenSide
Nachhaltige Wohnungen in Aschaffenburg
Am südlichen Stadtrand von Aschaffenburg, in der Rhönstraße 29 in 63743 Aschaffenburg, direkt angrenzend an den beliebten Stadtteil Schweinheim, entsteht das GreenSide – eine umweltfreundlicher Neubau mit 47 Wohnungen in moderner Holz-Hybrid-Bauweise.
Das Projekt wird als Effizienzhaus 40 mit QNG-PLUS Siegel errichtet und verpflichtet sich so zu sehr hohen Nachhaltigkeitskriterien hinsichtlich Umweltwirkung, Lebenszykluskosten, Rückbaufähigkeit sowie Komfort, Barrierefreiheit und Nutzergesundheit.
GreenSide Rhönstraße
Ihre Vorteile im Projekt
01
Nachhaltiges Objekt
Energiewert A+ (Energieausweis anzeigen) |
Niedrige Nebenkosten | Günstige Finanzierung | Nachhaltigkeitslabel QNG-PLUS | Niedriger CO2 Fußabdruck | zukunftssicher
02
Lage in Aschaffenburg
Stadtnah | Schweinheimer Höhe | Edeka | Aldi | Denn's Biomarkt | Baumarkt | Ärztezentrum im PRIME PARK | Sparkasse | Brotmacher | Google Maps
03
KFW-Finanzierung
2,20 % Zinsen (Stand: 30.04.2025, aktuelle Konditionen) | tilgungsfreier Anfangszeitraum | Günstige Finanzierung | max. 150.000 € je Wohneinheit
04
Ausstattung und Qualitäten
Effizienzhaus 40 mit QNG-PLUS |
Holz-Hybrid-Bauweise | PV-Anlage | bezugsfertige Ausstattung | barrierefrei

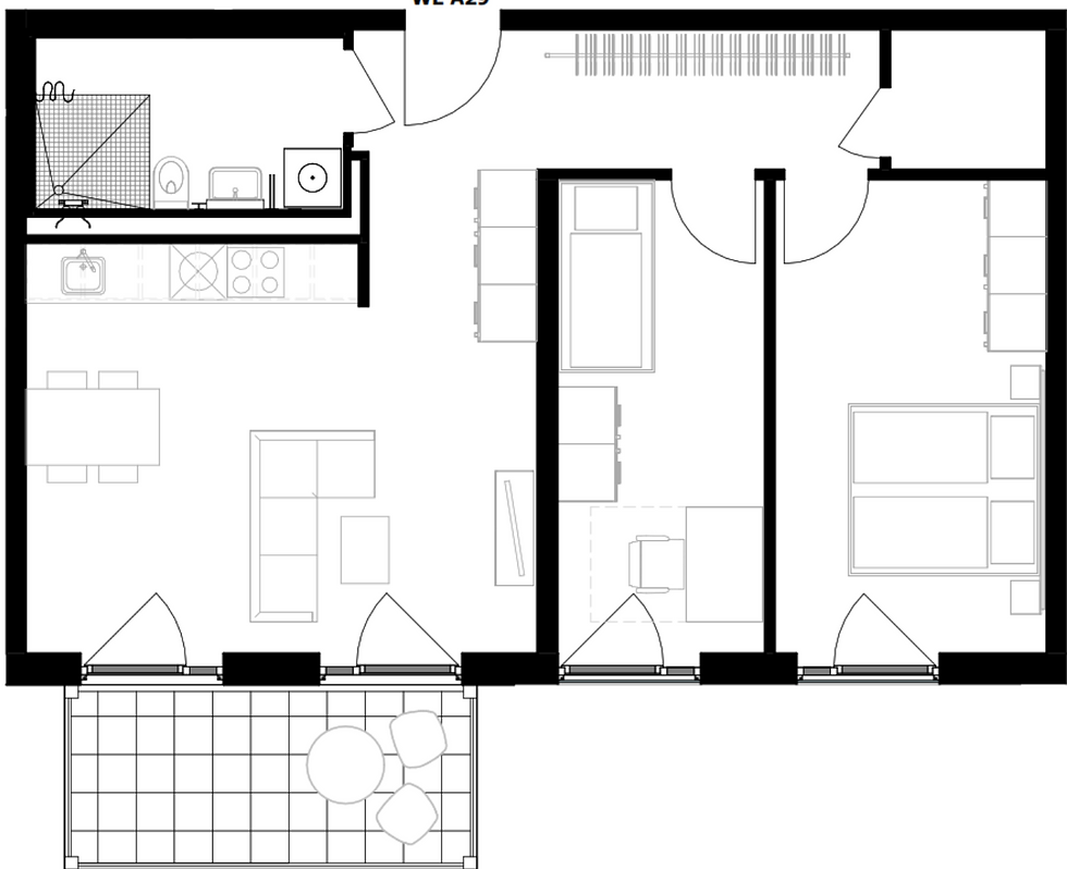
Die Bäder verfügen über bodengleiche Duschen mit Rutschsicherheitsfliesen und Edelstahlablauf. Zusätzlich sind ein Handtuchwärmer, eine Waschtischablage, ein Handtuchhalter und ein Toiletten-Papierhalter vorgesehen.
Schöne Badezimmer,
alle barrierefrei

In den Wohnräumen wird strapazierfähiger, vollflächig verklebter Vinylboden verlegt. In Bädern und Nassräumen kommen Fliesen aus Feinsteinzeug in der Farbe Ivory zum Einsatz – langlebig und pflegeleicht.
Hochwertige Innenböden: Vinyl & Feinsteinzeug

Die Wohnungen sind mit großen, bodentiefen Fenstern ausgestattet, die viel Tageslicht hereinlassen und den Wohnkomfort steigern.
Viele bodentiefe Fenster lassen die Sonne herein

Das Gebäude kombiniert eine tragende Struktur aus Stahlbetonfertigteilen mit nicht tragenden Holz-Außenwandelementen. Diese Bauweise vereint hohe Stabilität mit sehr guter Wärmedämmung und reduziert durch den Einsatz von Holz den CO₂-Fußabdruck.
Holz-Hybrid-Bauweise

Die Beheizung erfolgt über zentrale Luft-Wasser-Wärmepumpen auf den Dächern. In den Wohnungen sorgt eine Fußbodenheizung für eine gleichmäßige, energieeffiziente Wärmeverteilung bei gleichzeitig hoher Behaglichkeit.
Luft-Wasser-Wärmepumpe und Fußbodenheizung

Das Gebäude wird mit einer Photovoltaikanlage ausgestattet, die einen Teil des Strombedarfs der Luft-Wasser-Wärmepumpe nachhaltig deckt und so die Betriebskosten für die Bewohner senkt.
Photovoltaik-anlage mit
90 kWp Leistung
Rhönstraße 29, 63743 Aschaffenburg
Distanzen & Lage
Einer der größten Vorteile des GreenSide ist die fußläufige Erreichbarkeit zahlreicher Einrichtungen des täglichen Bedarfs. Supermärkte, Bäckereien, eine Drogerie sowie vielfältige Gastronomieangebote befinden sich in unmittelbarer Nähe.
Auch Bildung und Betreuung sind bestens abgedeckt: Kindergärten, die Außenstelle der Hefner-Alteneck-Schule und die Hochschule Aschaffenburg sind in wenigen Minuten zu Fuß erreichbar.
Der direkt angrenzende Gewerbepark „Prime Park“ bietet zudem Zugang zu verschiedenen Facharztpraxen, einer Apotheke sowie einer Sparkassen-Filiale.
Schulen und Kindergärten
300 - 360 m
Denns Bio Markt,
Edeka, ALDI, DM, Kaufland
170 - 800 m
Apotheke
200 m
Ärztezentrum
260 m
Bushaltestelle
350 m
Bahnhof
1.600 m
KfW-Darlehen
Durch die hohe Energieeffizienzklasse unseres Projekts können Sie ein KfW-Darlehen in Höhe von bis zu 150.000 € pro Wohnung zu besonders günstigen Konditionen in Anspruch nehmen. Der Zinssatz liegt bei ab 1,13 % (Stand: 17.10.2025, Laufzeit 10 Jahre), was Ihnen ermöglicht, von langfristig niedrigen Finanzierungskosten zu profitieren.
Degressive Abschreibung
Zusätzlich haben Sie die Möglichkeit, von einer degressiven Abschreibung von 5 % pro Jahr zu profitieren. Diese steuerliche Entlastung sorgt dafür, dass sich Ihre Investition schneller amortisiert und Ihre Steuerlast in den ersten Jahren signifikant sinkt.
Sonderabschreibung für Mietwohnungsbau
Für das Projekt ist zudem unter Umständen die Nutzung einer Sonderabschreibung von 5 % für die ersten vier Jahre möglich. Diese Sonderregelung ermöglicht eine noch schnellere Wertminderung Ihrer Investition und steigert die Rentabilität des Projekts, indem Sie zusätzlich Steuervorteile in den ersten Jahren der Vermietung nutzen können.
Wichtiger Hinweis
Die genannten Konditionen stellen kein verbindliches Finanzierungsangebot dar. Bitte beachten Sie, dass Ihre individuellen Steuereffekte und Abschreibungsmöglichkeiten unbedingt mit Ihrem Steuerberater besprochen werden sollten. Nur dieser kann die steuerlichen Auswirkungen Ihrer Investition korrekt beurteilen und Ihnen eine maßgeschneiderte Empfehlung geben.




Ihr Bauherr -
KALKAN & CUBARE
Bauherr des Projekts ist die KALKAN Gruppe. Entwickelt wurde das Vorhaben von der CUBARE Immobilienentwicklung GmbH, einem erfahrenen Partner im Bereich hochwertiger Projektentwicklung.
Die Unternehmensgruppe bringt seit 2007 umfassende Expertise in der Planung und Realisierung anspruchsvoller Wohnimmobilien mit und kann auf einen eindrucksvollen Track Record abgeschlossener Bauvorhaben verweisen. Interessenten haben zudem die Möglichkeit, Referenzobjekte zu besichtigen und sich persönlich von der Bauqualität zu überzeugen.

Vertriebsteam von Aurelion
Unser Team ist gerne für Ihre Anfrage da. Wir beraten Sie bei allen Fragen rund um den Immobilienkauf, unterstützen Sie bei der Auswahl der passenden Einheit und begleiten Sie kompetent durch den gesamten Kaufprozess – von der ersten Besichtigung bis zur finalen Schlüsselübergabe.
Sie erreichen uns jederzeit auch unter:
Verkaufsleiter
Max Röbke

Max R. ist als Verkaufsleiter zentraler Ansprechpartner des Projekts und hilft Ihnen bei allen Fragen weiter.
Verkäufer
Alessandro Greco

Alessandro ist neben seiner Tätigkeit als Prokurist auch für den Verkauf zuständig.
Verkäufer
Max Maschuw

Max M. ist seit 2024 bei Aurelion und erfahrener Verkäufer von Neubauimmobilien.
Auszubildene
Laura Rücker

Laura befindet sich in ihrer Ausbildung und ist gerne bei der Beratung und Suche behilflich.
Selbstständige Verkäuferin
Diana Dittmar

Diana ist als Vertriebsbeauftragte bei diesem Projekt für Aurelion unterstützend tätig.
Selbstständiger Verkäuferin
Ondine Gawwo

Ondine ist als Vertriebsbeauftragte bei diesem Projekt für Aurelion unterstützend tätig.
Selbstständige Verkäuferin
Alexandra Wissel

Alexandra ist als Vertriebsbeauftragte bei diesem Projekt für Aurelion unterstützend tätig.
Selbstständiger Verkäufer
Sajab Zia

Sajab ist als Vertriebsbeauftragter bei diesem Projekt für Aurelion unterstützend tätig.













